Најновији минималистички планови кућа су примери слика модерних минималистичких кућа.
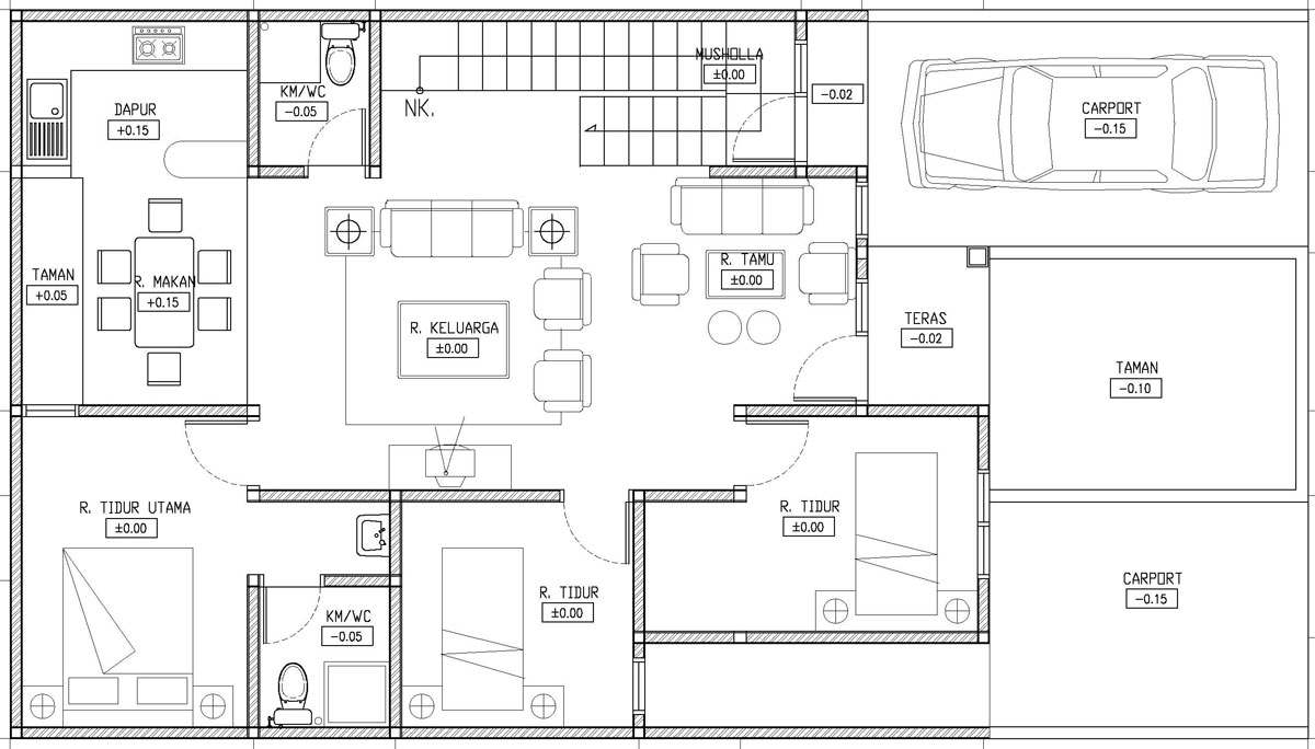
РизРои.блогцпот.цом - Модерни минималистички планови кућа овде представља примере пурапа слика модерних минималистичких планова кућа идеалних за мале породице. Најновији минималистички план куће има посебан концепт за понудити, што је једноставан утисак који не приморава становнике да брину касније у својим мрачним данима, јер минималистичка величина куће такође упоређује активности у кући. Минималистички план куће који ћемо вам овог пута представити је такође ваш избор сада, минималистички план куће је такође комплексан са гаражом за моделе градских аутомобила као што су Хонда Јазз, Иннова, Аванза, Ксениа, Кууманг типа Цити. ауто. Можете организовати овај минималистички план куће са месабаном, намештајем и било којим другим стварима које ћете природно ставити. Такође погледајте најновије минималистичке планове кућа , укључујући тип градског аутомобила који поседујете. У наставку аутор представља пример минималистичког плана куће са сликом минималистичке куће.Са горњим минималистичким планом куће, довршите минималистички дизајн куће који је аутор претходно представио у другим чланцима. У минималистичком плану куће , Канта има највише 3 собе, пошто је девелопер Техал претпоставио 4 особе у повезаној породици. Наравно, муж и жена и такође 2 деце, 1 соба за мужа и жену и још две собе за децу. Надамо се да горњи минималистички план куће може бити ваша референца у избору најбољег дизајна за ваш минималистички дом вечерас.




Tidak ada komentar:
Posting Komentar